Home for Life Immobilier Agence
Télécharger la fiche

Local professionnel 114 m²

Carcassonne (11000)
124 000 € Référence 75

A propos de ce bien

L'agence HOME FOR LIFE IMMOBILIER vous propose un local professionnel idéal pour un regroupement de professions libérales.

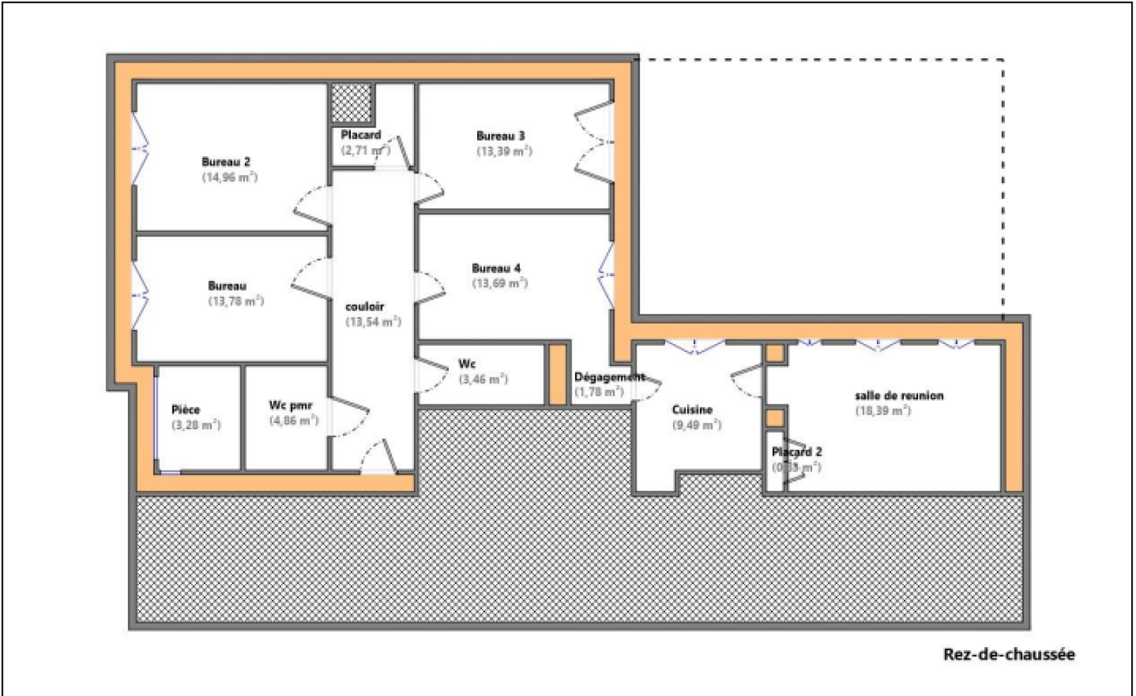
Ce bien dispose d'une surface totale de 114 m², comprenant 4 bureaux, une salle de réunion, une cuisine (salle de pause), deux WC dont un accessible PMR, ainsi que deux places de parking privatives.

Situé sur un boulevard passant de Carcassonne, à proximité du centre-ville, du Palais de Justice et des transports en commun.

Actuellement loué avec un bail de droit commun qui prendra fin en mars 2025.

Pour toute information complémentaire, n'hésitez pas à nous contacter.


Les informations sur les risques auxquels ce bien est exposé sont disponibles sur le site Géorisques

Caractéristiques de ce bien

Activités

  • Type de transaction Local professionnel

Agencement

  • Superficie m2 114 m²

Equipements

  • Chauffage individuel : air pulsé (climatisation)

Secteur

  • Code postal 11000
  • Ville Carcassonne

Diagnostics & compléments

  • Année de construction 1948
  • Risques natures et techniques OUI

Composition du bien

Rez-de-chaussée

  • salle 18.39 m²
  • bureau 13.78 m²
  • salle 14.96 m²
  • salle 13.39 m²
  • salle 13.69 m²
  • accueil 13.54 m²
  • salle 9.49 m²

Calcul des mensualités

* Champs obligatoires

Diagnostics énergétiques

Consommation énergétique
A B C D E F G
Emission de gaz à effet de serre
A B C D E F G

Montant estimé des dépenses annuelles d'énergie de ce logement pour un usage standard est compris entre 926 € et 1 120 € . 2023 étant l'année de référence des prix de l'énergie utilisés pour établir cette estimation.

Informations financières

Prix de vente honoraires inclus 124 000 €
Les honoraires d'agence seront intégralement à la charge du vendeur  
Charges 220 €
Bail Commun
Echéance du bail 2025-03-31
Loyer 790 € / mois