Stéphane PERARD Négociateur
Télécharger la fiche
Sous-compromis Nouveauté

Villa 5 pièce(s) 4 chambre(s) 140.19 m²

Carcassonne (11000)
375 000 € Référence V126

A propos de ce bien

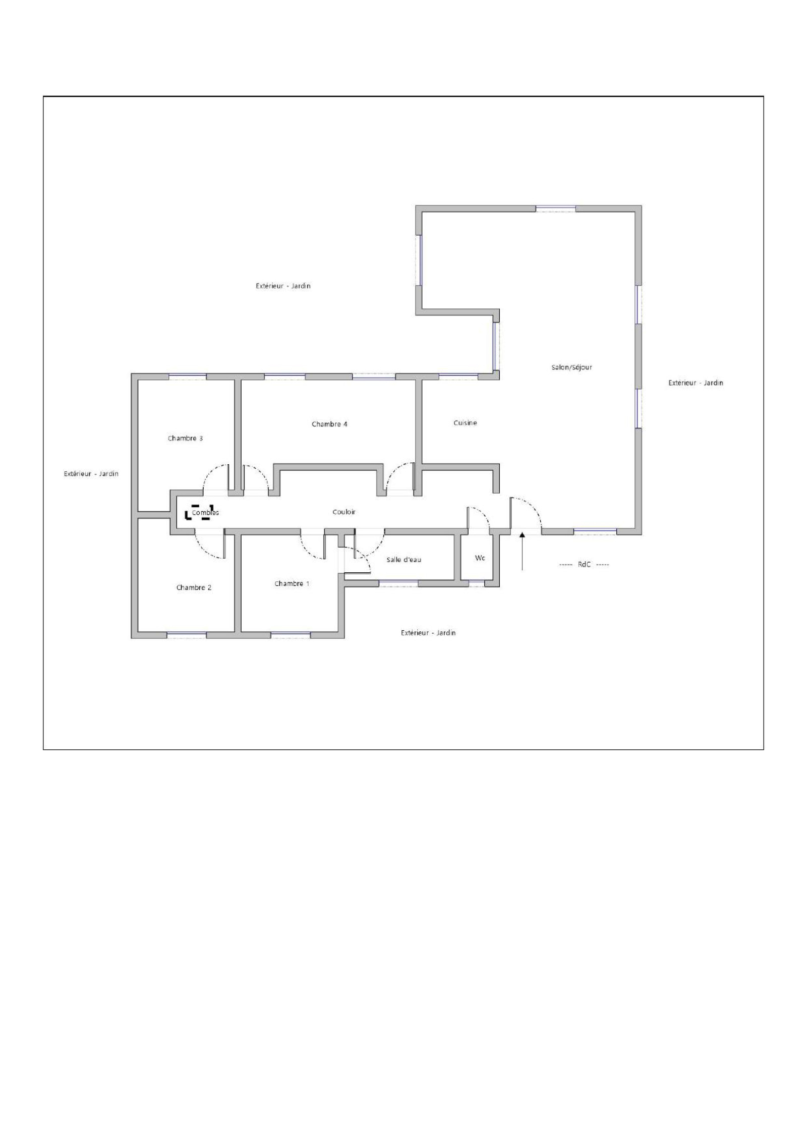
Nichée au cœur d’un environnement privilégié et sécurisé, cette élégante villa contemporaine de plain-pied séduit par ses volumes généreux et ses finitions haut de gamme.

Surface habitable : 140,16 m²
Garage : 25 m² (porte motorisée)
Terrain : 3 000 m² paysager et entièrement clos
Stationnement : 3 emplacements intérieurs

Dès l’entrée, un vaste salon de 54,54 m², baigné de lumière, ouvre sur une superbe terrasse plein sud de 70 m², idéale pour profiter des belles journées, ainsi qu’une terrasse couverte de 13 m² pour des repas ombragés et conviviaux.

La villa dispose de quatre chambres spacieuses, d’une climatisation intégrale, de double vitrage et de volets motorisés garantissant confort et sérénité.

Prestations d’exception :

  • Portail électrique et visiophone

  • Système d’alarme dernière génération

  • Garage spacieux avec ouverture automatisée

  • Terrain constructible avec possibilité de division (15 % de la surface) — rare sur le secteur

  • Zone non inondable

Idéalement située dans l’un des secteurs les plus recherchés, cette propriété allie élégance architecturale, qualité de vie et potentiel patrimonial.

Un bien rare, conjuguant prestige, lumière et opportunité d’investissement.


Zone soumise à une obligation légale de débroussaillement.
Les informations sur les risques auxquels ce bien est exposé sont disponibles sur le site Géorisques

Caractéristiques de ce bien

  • Surface 140,19 m²
  • carrez 140,19 m²
  • terrain 3 000 m²
  • séjour 54 m²
  • 4 chambre(s)
  • 1 salle(s) d'eau
  • construit en 2004
  • cuisine américaine (équipée)
  • Chauffage individuel : air pulsé (climatisation)
  • 1 garage(s)
  • exposition Sud
  • vue Campagne
  • terrasse
  • arboré
  • piscinable
  • visiophone
  • interphone

Diagnostics énergétiques

Consommation énergétique
A B C D E F G
Emission de gaz à effet de serre
A B C D E F G

Montant estimé des dépenses annuelles d'énergie pour un usage standard est compris entre 1 470 € et 2 050 € . Prix moyens des énergies indexés sur les années 2021, 2022 et 2023 (abonnements compris).

Informations financières

Prix de vente 375 000 € Les honoraires d'agence seront intégralement à la charge du vendeur
Taxe foncière annuelle 2 450 €

Calcul des mensualités

* Champs obligatoires