Home for Life Immobilier Agence
Télécharger la fiche
Exclusivité Nouveauté

Terrain à batir 529 m²

Couffoulens (11250)
65 000 € Référence 73

A propos de ce bien

L'agence Home For Life Immobilier vous propose ce terrain constructible de 529 m² situé à Couffoulens, aux portes de Carcassonne.

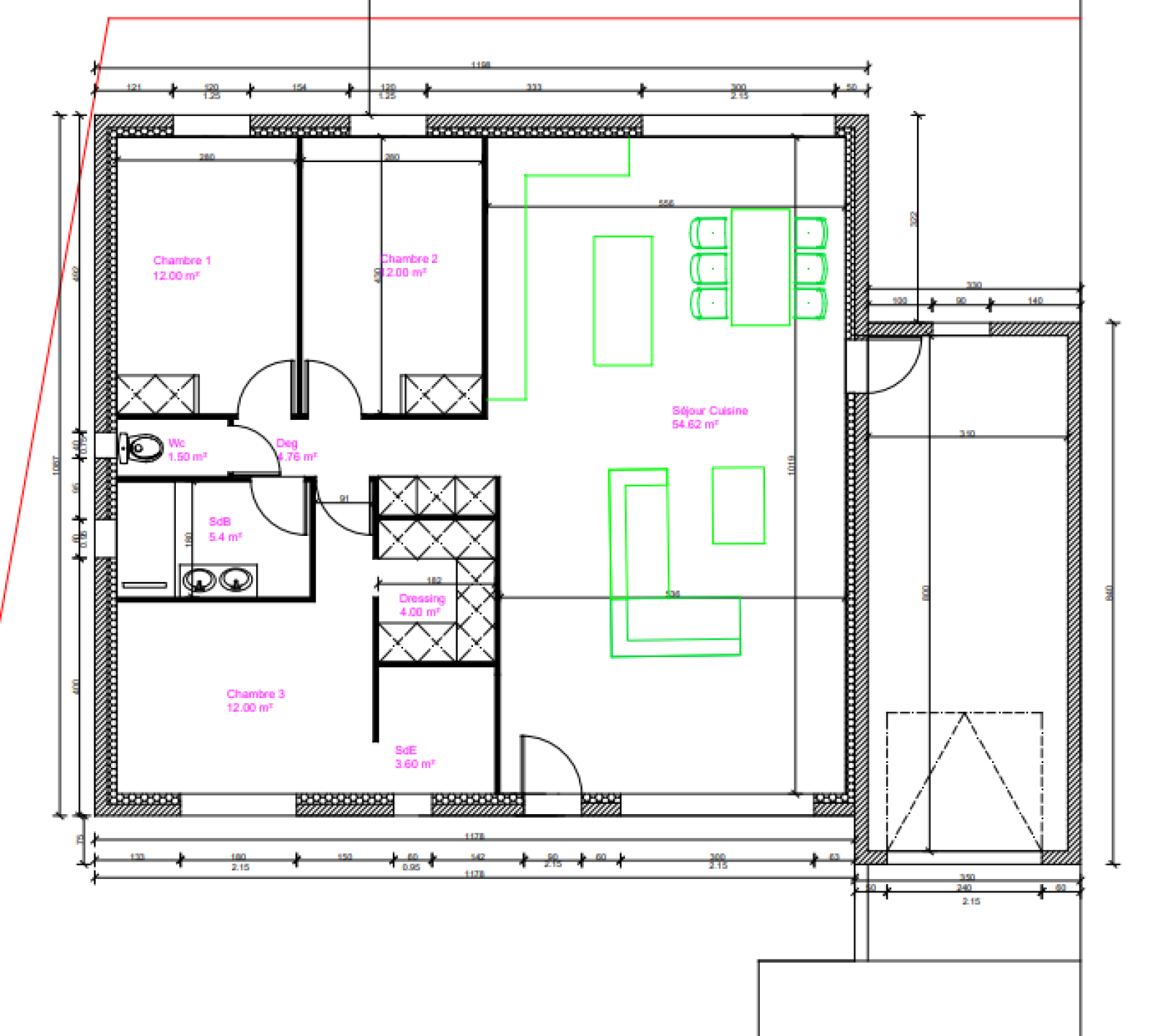
Les études de sol G1 et G2 ont été réalisées, et un permis de construire a été déposé et validé pour une villa de 107 m² comprenent trois chambres, dont une suite parentales avec salle d'eau et dressing, une piéce à vivre de 54 m², ainsi quun garage de 24.80 m².

Ce terrain, piscinable, bénéficie d'un environnement calme dans un lotissement agéable.


Les informations sur les risques auxquels ce bien est exposé sont disponibles sur le site Géorisques

Caractéristiques de ce bien

  • terrain 529 m²
  • exposition Nord-Sud

Diagnostics énergétiques

Consommation énergétique
A B C D E F G
Emission de gaz à effet de serre
A B C D E F G
DPE ANCIENNE VERSION

Informations financières

Prix de vente 65 000 € Les honoraires d'agence seront intégralement à la charge du vendeur

Calcul des mensualités

* Champs obligatoires