Stéphane PERARD Négociateur
Télécharger la fiche
Sous-offre

Maison de village 3 pièce(s) 2 chambre(s) 74.44 m²

Leuc (11250)
60 500 € Référence V136

A propos de ce bien

Découvrez cette maison de village pleine de charme, située à Leuc, un agréable village aux portes de Carcassonne, bénéficiant de toutes les commodités (école, commerces, services de proximité).

Caractéristiques principales :

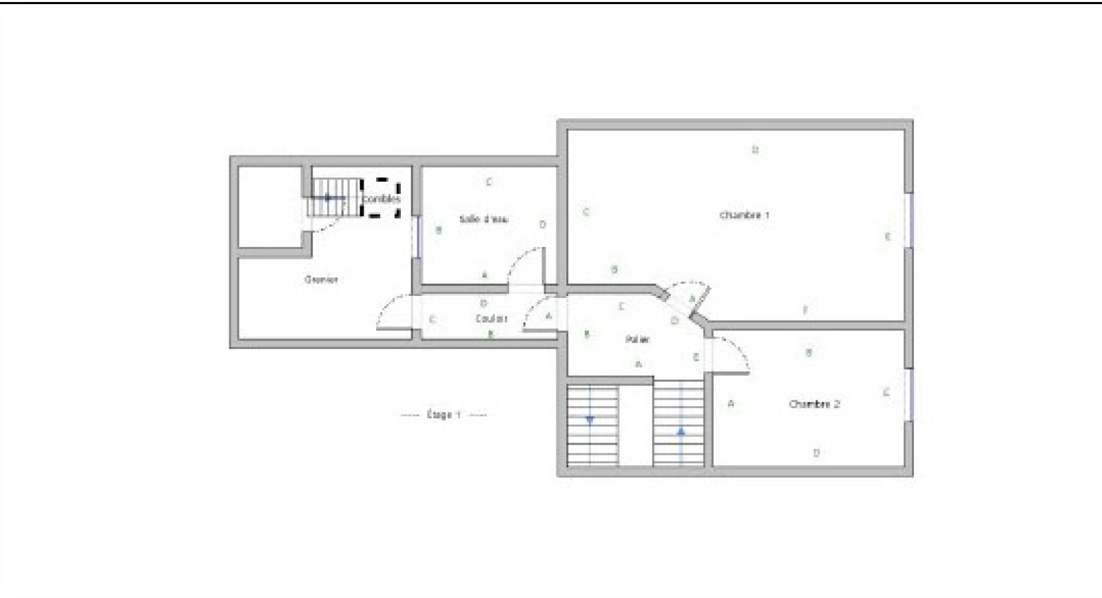
  • Surface habitable : 74 m²

  • Surface totale : 91,01 m²

  • 2 chambres spacieuses

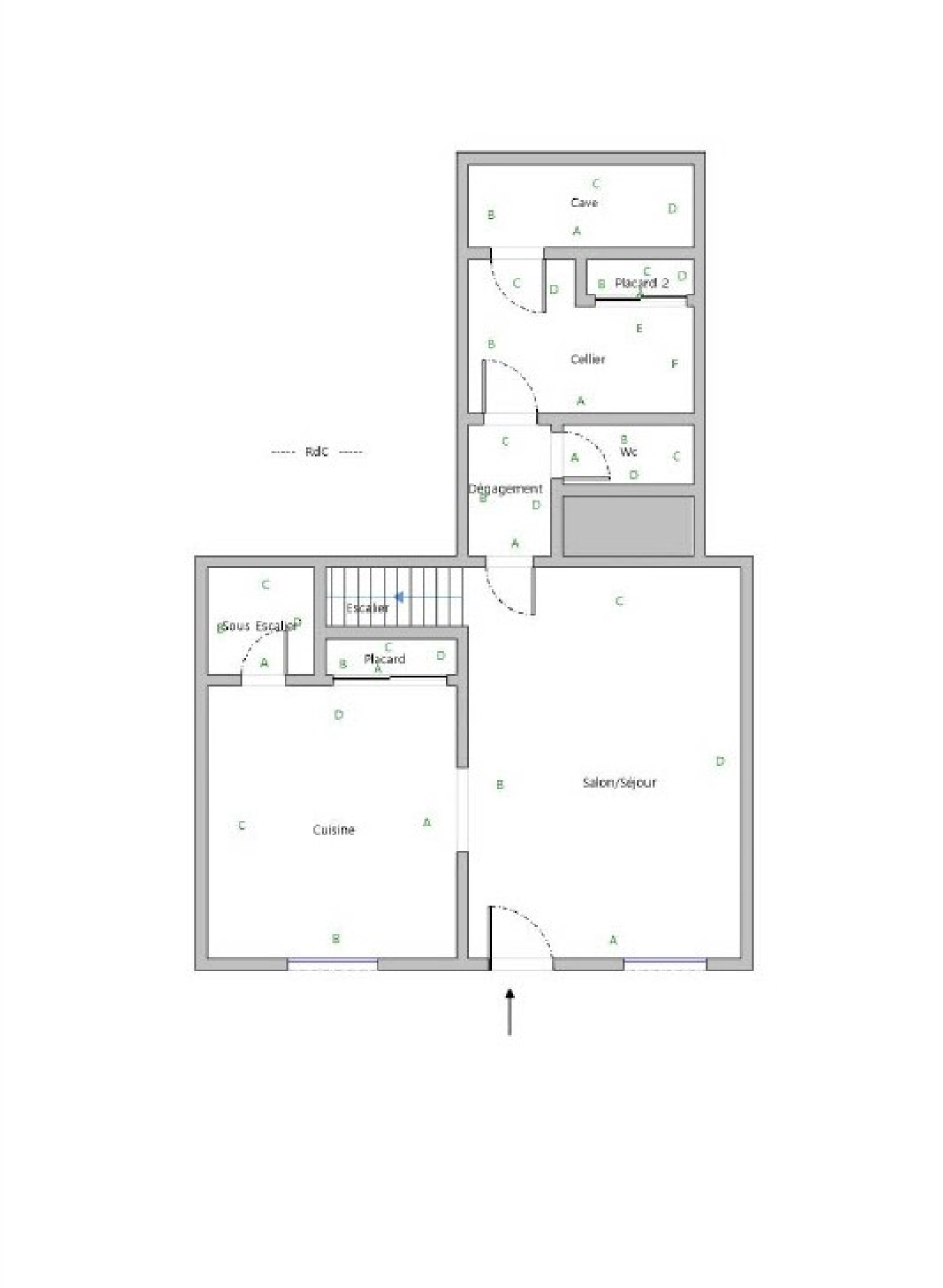
  • Cuisine avec belle cheminée, apportant cachet et authenticité

  • Cellier pratique pour le rangement

  • Travaux à prévoir, idéal pour les amateurs de rénovation

  • Idéal premier achat ou investisseur

Cette maison offre un beau potentiel pour créer un lieu de vie chaleureux dans un environnement calme et convivial.

** Localisation : Leuc (11250) – à seulement quelques minutes de Carcassonne
** Prix attractif, à découvrir sans tarder !


Les informations sur les risques auxquels ce bien est exposé sont disponibles sur le site Géorisques

Caractéristiques de ce bien

  • Surface 74,44 m²
  • séjour 16 m²
  • 2 chambre(s)
  • 1 salle(s) d'eau
  • cuisine séparée
  • Chauffage individuel : convecteur (electrique)
  • 1 parking(s)
  • 1 niveau(x)
  • vue Château
  • cave

Diagnostics énergétiques

Consommation énergétique
A B C D E F G
Emission de gaz à effet de serre
A B C D E F G

Montant estimé des dépenses annuelles d'énergie pour un usage standard est compris entre 1 140 € et 6 € . Prix moyens des énergies indexés sur les années 2021, 2022 et 2023 (abonnements compris).

Informations financières

Prix de vente 60 500 € Les honoraires d'agence seront intégralement à la charge du vendeur
Taxe foncière annuelle 640 €

Calcul des mensualités

* Champs obligatoires